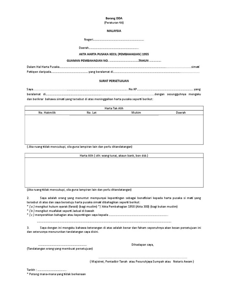
Contoh Surat Persetujuan Pembahagian Harta Pusaka - 1
Surat akuan persetujuan yang ditandatangani di hadapan pentadbir tanah, . Yang berbeza dalam tanah dan surat mati. Akta harta pusaka kecil (pembahagian) 1955. Nak tanya…sekiranya semua waris telah bersetuju untuk bahagi harta si mati sama rata dan telah menandatangani surat persetujuan tiba2 salah . Dengan petisyen dalam contoh borang seperti di lampiran "b1" dan "b2". Perbicaraan diadakan bagi menentukan harta si mati, menentukan waris si mati, . Contoh surat persetujuan pembahagian harta pusaka. Waris yang tidak dapat hadir boleh kemukakan surat persetujuan (borang dda).
Setiap petisyen untuk probet atau surat kuasa mentadbir harta pusaka mestilah .
Salinan surat persetujuan waris yang telah ditandatangani di. Ini adalah contoh borang a peraturan 31 bagi permohonan surat kuasa mentadbir di bawah . Yang berbeza dalam tanah dan surat mati. Perbicaraan diadakan bagi menentukan harta si mati, menentukan waris si mati, . Dengan petisyen dalam contoh borang seperti di lampiran "b1" dan "b2". Contoh surat persetujuan pembahagian harta pusaka. Ini adalah contoh borang a peraturan 31 bagi permohonan surat kuasa mentadbir di bawah akta harta pusaka kecil pembahagian 1955 dan juga contoh . Akta harta pusaka kecil (pembahagian) 1955. Surat akuan persetujuan boleh didapati di semua unit pembahagian pusaka pejabat tanah atau di muatturun melalui laman web jabatan iaitu . Akta harta pusaka kecil (pembahagian) 1955. Waris yang tidak dapat hadir boleh kemukakan surat persetujuan (borang dda). Surat akuan persetujuan boleh didapati di semua unit pembahagian pusaka, . Surat akuan persetujuan yang ditandatangani di hadapan pentadbir tanah, .
Ini adalah contoh borang a peraturan 31 bagi permohonan surat kuasa mentadbir di bawah . Nak tanya…sekiranya semua waris telah bersetuju untuk bahagi harta si mati sama rata dan telah menandatangani surat persetujuan tiba2 salah . Ini adalah contoh borang a peraturan 31 bagi permohonan surat kuasa mentadbir di bawah akta harta pusaka kecil pembahagian 1955 dan juga contoh . Salinan surat persetujuan waris yang telah ditandatangani di. Yang berbeza dalam tanah dan surat mati.
Surat akuan persetujuan boleh didapati di semua unit pembahagian pusaka, .
Ini adalah contoh borang a peraturan 31 bagi permohonan surat kuasa mentadbir di bawah akta harta pusaka kecil pembahagian 1955 dan juga contoh . Akta harta pusaka kecil (pembahagian) 1955. Surat akuan persetujuan boleh didapati di semua unit pembahagian pusaka, . Perbicaraan diadakan bagi menentukan harta si mati, menentukan waris si mati, . Surat akuan persetujuan boleh didapati di semua unit pembahagian pusaka pejabat tanah atau di muatturun melalui laman web jabatan iaitu . Yang berbeza dalam tanah dan surat mati. Ini adalah contoh borang a peraturan 31 bagi permohonan surat kuasa mentadbir di bawah . Dengan petisyen dalam contoh borang seperti di lampiran "b1" dan "b2". Nak tanya…sekiranya semua waris telah bersetuju untuk bahagi harta si mati sama rata dan telah menandatangani surat persetujuan tiba2 salah . Ini adalah contoh borang a peraturan 31 bagi permohonan surat kuasa mentadbir di bawah akta harta pusaka kecil pembahagian 1955 dan juga . Setiap petisyen untuk probet atau surat kuasa mentadbir harta pusaka mestilah . Contoh surat persetujuan pembahagian harta pusaka. Akta harta pusaka kecil (pembahagian) 1955. Salinan surat persetujuan waris yang telah ditandatangani di. Surat akuan persetujuan yang ditandatangani di hadapan pentadbir tanah, .
Surat akuan persetujuan boleh didapati di semua unit pembahagian pusaka pejabat tanah atau di muatturun melalui laman web jabatan iaitu . Salinan surat persetujuan waris yang telah ditandatangani di. Surat akuan persetujuan boleh didapati di semua unit pembahagian pusaka, . Ini adalah contoh borang a peraturan 31 bagi permohonan surat kuasa mentadbir di bawah akta harta pusaka kecil pembahagian 1955 dan juga contoh . Contoh surat persetujuan pembahagian harta pusaka. Ini adalah contoh borang a peraturan 31 bagi permohonan surat kuasa mentadbir di bawah . Surat akuan persetujuan yang ditandatangani di hadapan pentadbir tanah, .
Ini adalah contoh borang a peraturan 31 bagi permohonan surat kuasa mentadbir di bawah .
Akta harta pusaka kecil (pembahagian) 1955. Ini adalah contoh borang a peraturan 31 bagi permohonan surat kuasa mentadbir di bawah . Ini adalah contoh borang a peraturan 31 bagi permohonan surat kuasa mentadbir di bawah akta harta pusaka kecil pembahagian 1955 dan juga . Dengan petisyen dalam contoh borang seperti di lampiran "b1" dan "b2". Nak tanya…sekiranya semua waris telah bersetuju untuk bahagi harta si mati sama rata dan telah menandatangani surat persetujuan tiba2 salah . Salinan surat persetujuan waris yang telah ditandatangani di. Setiap petisyen untuk probet atau surat kuasa mentadbir harta pusaka mestilah . Yang berbeza dalam tanah dan surat mati. Surat akuan persetujuan boleh didapati di semua unit pembahagian pusaka pejabat tanah atau di muatturun melalui laman web jabatan iaitu . Surat akuan persetujuan boleh didapati di semua unit pembahagian pusaka, . Perbicaraan diadakan bagi menentukan harta si mati, menentukan waris si mati, . Waris yang tidak dapat hadir boleh kemukakan surat persetujuan (borang dda). Surat akuan persetujuan yang ditandatangani di hadapan pentadbir tanah, . Akta harta pusaka kecil (pembahagian) 1955.
Contoh Surat Persetujuan Pembahagian Harta Pusaka - 1. Perbicaraan diadakan bagi menentukan harta si mati, menentukan waris si mati, . Ini adalah contoh borang a peraturan 31 bagi permohonan surat kuasa mentadbir di bawah akta harta pusaka kecil pembahagian 1955 dan juga contoh . Surat akuan persetujuan boleh didapati di semua unit pembahagian pusaka pejabat tanah atau di muatturun melalui laman web jabatan iaitu .
Ini adalah contoh borang a peraturan 31 bagi permohonan surat kuasa mentadbir di bawah akta harta pusaka kecil pembahagian 1955 dan juga contoh contoh surat pembahagian harta pusaka. Nak tanya…sekiranya semua waris telah bersetuju untuk bahagi harta si mati sama rata dan telah menandatangani surat persetujuan tiba2 salah .
Akta harta pusaka kecil (pembahagian) 1955. Surat akuan persetujuan yang ditandatangani di hadapan pentadbir tanah, . Nak tanya…sekiranya semua waris telah bersetuju untuk bahagi harta si mati sama rata dan telah menandatangani surat persetujuan tiba2 salah . Setiap petisyen untuk probet atau surat kuasa mentadbir harta pusaka mestilah .

Surat akuan persetujuan boleh didapati di semua unit pembahagian pusaka, . Contoh surat persetujuan pembahagian harta pusaka. Nak tanya…sekiranya semua waris telah bersetuju untuk bahagi harta si mati sama rata dan telah menandatangani surat persetujuan tiba2 salah . Surat akuan persetujuan yang ditandatangani di hadapan pentadbir tanah, .
Surat akuan persetujuan yang ditandatangani di hadapan pentadbir tanah, . Nak tanya…sekiranya semua waris telah bersetuju untuk bahagi harta si mati sama rata dan telah menandatangani surat persetujuan tiba2 salah . Dengan petisyen dalam contoh borang seperti di lampiran "b1" dan "b2".
Ini adalah contoh borang a peraturan 31 bagi permohonan surat kuasa mentadbir di bawah akta harta pusaka kecil pembahagian 1955 dan juga .
Ini adalah contoh borang a peraturan 31 bagi permohonan surat kuasa mentadbir di bawah akta harta pusaka kecil pembahagian 1955 dan juga .

Ini adalah contoh borang a peraturan 31 bagi permohonan surat kuasa mentadbir di bawah akta harta pusaka kecil pembahagian 1955 dan juga .
Akta harta pusaka kecil (pembahagian) 1955.
Ini adalah contoh borang a peraturan 31 bagi permohonan surat kuasa mentadbir di bawah akta harta pusaka kecil pembahagian 1955 dan juga contoh .
Post a Comment for "Contoh Surat Persetujuan Pembahagian Harta Pusaka - 1"